NOAH VILLA

2022ALEXANDER BELOBORODOV362 m2
“Ноев ковчег” - эскейп для всей семьи, тихое убежище от шумной жизни мегаполиса. Архитектор Александр Белобородов спроектировал дом, в котором строгие линии, кубические объемы, небольшой отсыл к работам модернистов XX века говорят о его основательности, монументальности. И, в то же время, огромные панорамные окна делают постройку более легкой, воздушной, позволяют ей впустить природу в интерьер и практически раствориться в окружающем пейзаже.
01_final.jpg
Фасад дома облицован натуральным камнем с включением панелей из мореного дуба. С внешней стороны он более строгий, закрытый от посторонних глаз. Основная жизнь кипит во внутреннем дворе с просторной открытой террасой. На первом этаже расположены гостиная, столовая, кухня, кабинет и две гостевых комнаты с собственными санузлами.
05_final.jpg
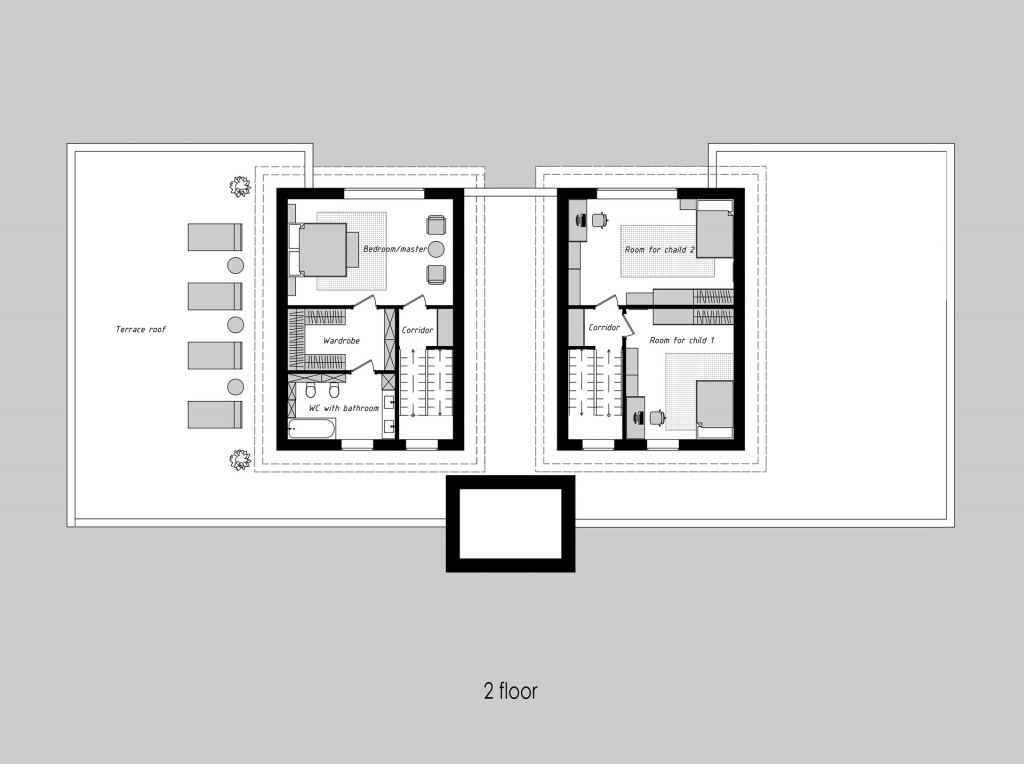
В отдельные жилые модули на втором этаже ведут два лестничных марша, в которых скрыты системы хранения и хозяйственные блоки. Модули - это “детская” и “взрослая” территории. Каждый из них оборудован своей гардеробной и ванной комнатой. На “взрослой” территории есть выход на крышу, где в весенне-осенний период стоят шезлонги и столики, здесь приятно неспешно завтракать под пение птиц или принимать солнечные ванны. В “детском” модуле выход на крышу невозможен из соображений безопасности. Стоит отметить, что модули не соединены между собой. Для кого-то такое решение покажется странным, но для детей-подростков -  это отдельный бонус и возможность почувствовать свою независимость. К тому же, этот блок впоследствии можно превратить в дополнительную гостевую зону.
02.jpg
04_final.jpg
Планировочное решение Дом 1 (1-1)-001.jpg
Планировочное решение Дом 1 (2-2)-001.jpg